作者:鑫辰信息科技发布日期:2023-11-08浏览人数:805
电气工程师在完成电气原理图设计的同时,还需要频繁的修改,导出各报表,使得大量时间浪费在重复性的手动工作上,即便如此,也无法保证百分百准确无误;电气设计部门和机械设计部门虽然在设计同一产品,但不同部门之间互相独立的设计工具使协同变得困难。那么如何提高电气工程师的设计效率?如何在协同中完成设计?
达索系统SOLIDWORKS 2024 Electrical为电气工程师提供高效准确的电气原理图设计的解决方案同时,还提供多用户协作设计,使机械设计和电气设计得以在同一平台内进行。电气工程师在二维图纸中的电气设计,可以在机械工程师的三维空间结构中进行模拟布局,自动布线,计算线长,真正实现机电一体协同设计。
达索系统SOLIDWORKS 2024 Electrical全新升级,为用户带来全新体验。
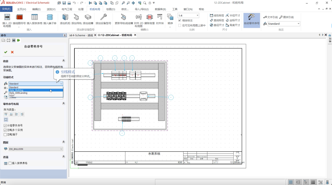
达索系统SOLIDWORKS 2024 Electrical中,我们可以为2D机柜布局图中的零件自动创建序号,序号块具有各种形状可选,多种布局阵列及过滤条件,并且零件序号还可以体现在机柜材料清单中。

在绘制电气原理图时,当我们删除部件型号,设备属性中相关的部件属性及端子名称会被同时删除;

在报表属性中,新增加了“范围值”属性,我们可以设置任意特殊符号,为连续3个及以上的变量进行缩写设置,以便减小报表列宽,降低分行的概率;

在达索系统SOLIDWORKS 2024 3D中,我们能够更加快捷方便的进行设备对齐、批量修改导轨及线槽长度;


新增“仅为活动位置布线”选项,对大项目布线,我们可先进行子装布线,再总装布线,从而提升布线效率。

达索系统SOLIDWORKS2024Electrical为电气工程师提供高效准确的电气原理图设计解决方案,支持多用户协作设计,实现机电一体协同设计。同时,新增自动创建零件序号、特殊符号缩写设置等功能,提高设计效率。
以上是SOLIDWORKS 2024 Electrical全新升级的详细信息,由SOLIDWORKS代理商一级代理商鑫辰科技为您提供,如果您对SOLIDWORKS正版软件感兴趣,可访问鑫辰信息科技(深圳)有限公司东莞分公司进行咨询。
在工业设计和产品制造领域,三维可视化技术正变得越来越重要。SOLIDWORKS Composer作为一款强大的三维交互式设计软件,它不仅能够帮助工程师和设计师更高效地创建和展示产品,还能提升产品文档的质量和用户体验。以下是关于SOLIDWORKS Composer的详细介绍。一、SOLIDWORKS Composer简介SOLIDWORKS Composer是一款基于SOLIDW
在从精密机械零件到复杂工业设备的设计中,对称结构几乎无处不在。对称不仅满足功能性需求,也体现了视觉上的平衡与美感。SOLIDWORKS镜像功能正是实现这一设计意图的高效工具,能够帮助用户以最短的时间创建出高度精确的对称几何体。一:镜向功能基础操作指南SOLIDWORKS 的镜向功能操作起来十分简便直观。当你完成模型一侧
SOLIDWORKS 2026带来显著的性能提升与智能化新功能,帮助工程师更高效地完成复杂设计,尤其在机械研发与制造领域优势明显。随着功能增强,其正版授权的价格与性价比也成为用户关注的焦点
SOLIDWORKS Flow Simulation 颠覆传统设计,一键解锁流体仿真新纪元。该流体CFD仿真工具与SOLIDWORKS深度集成,能够处理流体流动仿真和传热散热仿真。
鑫辰信息科技(深圳)有限公司成立于2015年,是法国达索系统SOLIDWORKS官方授权的核心代理商。拥有官方认证
在机械设计与产品创新领域,参数化设计已成为驱动设计流程数字化转型的核心技术。作为SOLIDWORKS高阶应用的关键模块,方程式系统通过建立多维参数的动态关联网络,实现了从基础尺寸到复杂特征的智能联动控制。这种基于数学逻辑的驱动机制不仅支持关键参数的全局响应式更新,更构建了可溯源的参数架构体系,为产品快速迭代与
微信扫一扫
15986813180(手机号码) 0755-89233676(深圳专线)
广东省东莞市南城街道元美西路8号华凯广场1栋513室
深圳市龙岗区龙城街道天安数码城2栋B座1302(黄阁坑C出口)
victor@sz-stars.com
victor@sz-stars.com
联系我们